PLEASE SUPPORT OUR SPONSORS
HISTORICAL COURTS GET A FACELIFT
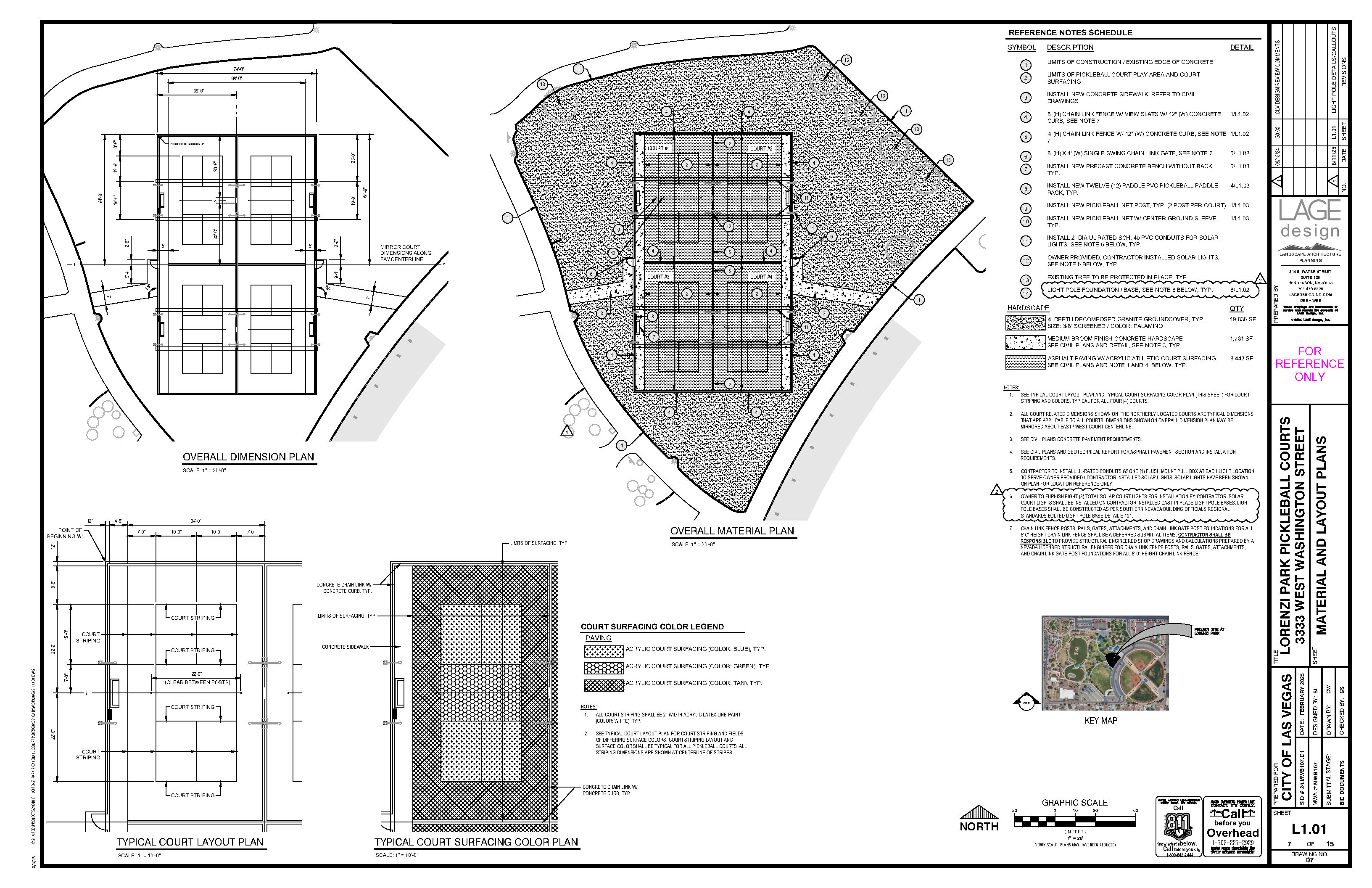
In July of 2013, then Mayor Pro-Tem Stavros Anthony opened the pickleball courts at Police Memorial Park. The location served as the first venue for the City of Las Vegas to offer outdoor pickleball. The facility transitioned from an underutilized roller hockey rink into four dedicated pickleball courts. The amenity deserves a facelift after twelve years of service to the pickleball community, which now welcomes the addition of four more courts.
Police Memorial temporarily closed for public use in September of 2024, making way for a $5.2 million renovation. The park is operated by the City of Las Vegas which plans to reopen the venue in May of 2025. The project will bring upgrades to existing amenities including parking, shade structures, lights, turf, and the dog park. Current basketball and pickleball courts will be resurfaced. Four more pickleball courts will be added in addition to a K-9 memorial.
Following is a historical link to its dedication https://www.youtube.com/watch?v=ABjx2plO5mE . The courts are the result of awareness, raised early on by John Donovan Sloan, a community pickleball pioneer and early USA Pickleball ambassador. His campaign and diligence paid off bringing dedicated courts to the City of Las Vegas. Thanks to Mr Sloan's early efforts, many novice players learned pickleball at Police Memorial and went on to share the sport across the Valley.
We thank Mr Sloan for his dedication to sport and influence in the community. Here are some early pictures of the 2013 conversion of the amenity.
Original courts under construction.
John received a proclamation from the Clark County Commission in February 2022 honoring his volunteer work promoting the growth of pickleball.
The park refresh continues. January 2025 is the halfway mark. The old makes way for the new. Here are some photos of the construction that began in September.
January 13, 2025
Tournament Message from Mesquite President

We are getting excited here in Sun City Mesquite about our upcoming Flat Top Mesa Challenge tournament. The deadline for registration is October 12th. The information on the tournament is attached.
We’d like to thank Selkirk Sport for being a premier sponsor of our tournament. Selkirk has been a fantastic partner, providing the official tournament ball - the Selkirk Pro S1 Pickleball, the next generation of Pickleball technology. They have also provided raffle items to be given away at the tournament; including Selkirk’s Luxx Control Air pickleball paddle, the ultimate control paddle for balanced pickleball players.
Our hydration & nutrition sponsor, Jigsaw Health, has provided pickleball electrolyte supreme packets for each competitor (along with a $10 off coupon) because It’s Fun to Feel Good. We will also have water, coffee, and tea available each morning. Our tournament swag bag will also have some other fun items for each competitor.
We plan to have two food vendors on the event lawn throughout the day so you can fuel up before the awards ceremony and raffle drawing.
Please let your club members know about the upcoming deadline.
Thank you!
Lori Andrus, President
https://members.southernnevadapickleball.org/Calendar/moreinfo.php?eventid=142098
September 13, 2024
POLICE MEMORIAL RENOVATION
Police Memorial will close for public useSeptember 3, 2024, for a $5.2 million renovation that will take approximately 8-10 months to complete. The park is operated by the City of Las Vegas which plans to reopen the venue in the summer of 2025. The project will bring upgrades to existing amenities including parking, shade structures, lights, turf, and the dog park. Current basketball and pickleball courts will be resurfaced. Four more pickleball courts will be added in addition to a K-9 memorial.
The renovation will impact all venue utilization patterns at northwest locations. Patrons of the courts will need to find alternative places and times for pickleball activity. City of Las Vegas summer leagues beginning July 9th will be scheduled at Durango Hills and Bill Briare locations. The schedule for City pickleball events can be found in the catalog : Catalog - City of Las Vegas (lasvegasnevada.gov)
https://www.youtube.com/watch?v=HoRd_etRqyg
SNP encourages everyone to step up and Share the Courts at all venues everywhere.
The following is a short list of outdoor public places to play in the northwest, ranked in the order of utilization (lowest to highest):
1. Patriot Community Park; 4050 Thom Blvd., 89130
2. Centennial Hills Park; 7101 N. Buffalo Drive
3. Aloha Shores Park; 7550 W Sauer Dr
4. Lone Mountain Park; 4445 N Jensen St
5. Bill Briare Family Park; 650 N. Tenaya way
6. Durango Hills Park; 3545 N Durango Dr
For a complete list of places to play goto Venues - Southern Nevada Pickleball
On July 26, 2013, then Mayor Pro-Tem Stavros Anthony opened Police Memorial Park. The location served as the first venue for the City of Las Vegas to offer outdoor pickleball. The facility transitioned from an underutilized roller hockey rink into four dedicated pickleball courts. Eleven years later, it deserves a face lift. Following is a historical link to it's OPENING PICKLEBALL CEREMONIES - POLICE MEMORIAL PARK (youtube.com)
June 27, 2024
Wayne Bunker Park Returns to City Council For a Vote
The agenda for the upcoming Las Vegas City Council has been published. The meeting is Wednesday, February 21, 2024 at 9am in the Council Chambers. The address for the meeting is 495 South Main Street.
This is a heavy agenda. Pickleball is item 54 on the agenda. This is consideration of a revision (23-0382-SDR1) to a previously approved development plan Z-002-88(1) for the park. The item was subject to abeyance at a previous Council meeting and will be voted on at the February 21, 2024 meeting.
The agenda and supporting documentation for Project 23-0382 can be found at:
https://lasvegas.primegov.com/Portal/Meeting?meetingTemplateId=17079
It is imperative that picklers attend this meeting and/or speak in favor of bringing courts to this park.
The City has been willing to address concerns of previous plans, mitigation efforts to control noise and manage congestion. We need to show our support and appreciation
The project is 3 years in the making. It is time to call the question and move forward. This project is subsequent to a City of Las Vegas $12,009,000 grant award by the BLM.
February 14, 2024
Wayne Bunker Park Revisions
The agenda for the upcoming City Planning Commission has been published. The meeting is Tuesday, December 12, 2023 at 6pm in the Council Chambers at 495 South Main Street.
There is a heavy agenda (37 items). Pickleball is item 22b on the agenda. This is a revision (23-0382-SDR1) to a previously approved development plan Z-002-88(1) for the park. The project is 3 years in the making. It is time to call the question and move forward. This project is subsequent to a City of Las Vegas $12,009,000 grant award by the BLM.
Project 23-0382
https://lasvegas.primegov.com/
You can voice you pre-approval prior to the meeting at
https://cityoflasvegas.
You can find an image of the footprint at Bunker_Pickleball_Site_
It is imperative that picklers attend this meeting and/or speak in favor of bringing courts to this park. We need to compliment the City's willingness to address concerns of previous plans and mitigation efforts to control noise and manage congestion. We need to provide constructive comments and recommendations for improvement.
The number of courts went from 30 to 24, a high wall was added on the south side and distance applied to court placement to address the concerns of neighbors.
Hopefully, the City can remedy the limited parking based on the number of courts.
We need more courts and this is an excellent solution. Your consideration and support is greatly appreciated.
Please express your recommendations to a SNP Board member and consider coming to the meeting.
December 6, 2023
Toys for Tots 2023 - FUNd Raiser
Picklers gathered to make a toy possible for a child's Christmas. The courts at the Desert Vista Community Center served to host 145 players in a holiday FUNd raiser. Players registered to compete in round robins over the course of three days. Participates and spectators were asked to donate unwrapped toys and/or a monetary donation for the cause. In addition, gift baskets were raffled off to help raise monies. We appreciate the efforts of the Summerlin Pickleball Club, SNP leadership, the local Marine Corps Reserve, active-duty marines, the organizers and all the volunteers in providing an enhanced player experience. Even young active-duty marines picked up a paddle for the first time and experienced the fun of pickleball. Proceeds went to the Marines Toys for Tots 501(c)(3) not-for-profit charity.
December 3, 2023
2023 Heroes Open
The annual Heroes Open was held at Sunset Park November 9-12th. Over 240 players gathered to raise monies for three nonprofit organizations: Southern Nevada Pickleball, Clark County Fire Fighters Local 1908 "Proud to Rescue Benevolent fund" and the Law Enforcement Assistance Fund (LEAF). This was a tribute to our veterans and early responders. We thank the players, volunteers, SNP leadership, USAP ambassadors and Excel pickleball for making a quality professional tournament happen.
November 12, 2023
Cora Coleman vs Desert Breeze
The Cora Coleman Senior Center battled Desert Breeze Community Center today in an Elite 8 Seniors Pickleball Tournament at Sunset Park. A squad of 4 mixed-doubles teams selected from each Center participated in a double elimination competition sponsored by Clark County Parks and Recreation. Rico and Keiko prevailed, and the trophy travels back to Desert Breeze for display until next season. A special thanks to Russell Thompson and his staff for making this happen and Commissioner Justin Jones for sponsoring the event. Awesome players and volunteers.
October 19, 2023
Age 55 plus forum - Mini Competitions
Southern Nevada Pickleball Club is pleased to announce the establishment of a pilot program that brings together eight senior communities in our region. The primary objectives of this program are to cultivate new friendships, foster a sense of community that embraces all, and provide opportunities for seniors to engage in recreational activities. We recognize that the success of this venture is contingent upon careful evaluation, and we are currently in the trial phase to determine its viability for future continuation. Throughout this initial phase, we have already witnessed the formation of new friendships and the unification of senior communities that might not have had the opportunity to connect otherwise. On the 12th of November, we will conclude this trial period and conduct a thorough analysis of the program's advantages and disadvantages to make an informed decision about its future. We wish to express our gratitude to all those who have played a part in making this initiative possible, with a special acknowledgment to the Team Captains and their assistants. Your dedication and commitment have been instrumental in shaping this endeavor. The eight communities participating in this program include: Heritage Henderson, Aliante, Regency, Sun City Summerlin, Trilogy Summerlin, Trilogy Sunstone, Siena and Heritage Stonebridge. Regardless of the outcome, we are confident that it has already made a positive impact by bringing communities together and creating opportunities for social engagement. Thank you to everyone involved, and let's continue to work together to strengthen our senior communities and foster lasting connections.
October18, 2023
FUNd raiser for referee academy
Players supported a fun evening at Sunset Park for a good cause. Thanks to the Pickleball Community, monies were raised to help with the upcoming referee Academy. We appreciate all who donated and came out for the fun event.
Music was provided by our one and only Randy Wheeler. It was fun to have an event that brought players together from the north and south parts of the Valley..
Great partnership with the referees, Excel Pickleball and Southern Nevada Pickleball. Special thanks to all of you who donated the beautiful raffle baskets.
We appreciate all of you who are part of Southern, Nevada Pickleball, as it is your membership that allows these events to happen.
Also, a special thanks to all of our referees who take the time to go through the tremendous training and perseverance. Their efforts allow us to have great tournaments both here in Las Vegas and throughout the country.
JAugust 13, 2023
"Play through the last moment of light."
For the summer solstice, Southern Nevada Pickleball will promote simultaneous play at all courts across the valley to raise awareness.
We are working in tandem with the local Alzheimer’s Association to communicate the value of playing pickleball on mental health.
SNP will host a campaign seeking donations to fight dementia. We encourage all players, their families, and friends to contribute. On June 21st, seek out your favorite venue, have fun, and PLAY. Expand your circle to players that you do not know.
Watch for more periodic information on this initiative.
Save the date. Wednesday, June 21, 2023
June 3, 2023
Trilogy Sunstone hosts mini-tournament
The Trilogy Sunstone Community opened their courts this morning for charity. Players were able to participate in a friendly round robin at courts next to the Cabochon Club. Proceeds from the event go to Three Square, the Poppy Foundation and Southern Nevada Pickleball. Players competed for prizes, not medals and met afterwards for food and drink at the club. A special thank you to the volunteer organizers Patti Chess, Sheryl Bon, Alec Earle, Sheila Earle, Daniel Arias and Brien Vokits. Alec Earle is in the picture giving food and money to Poppy Foundation and Three Square.
June 3, 2023
Hollywood Courts set to open.
April 28 2023
2023 USA Pickleball Mountain Diamond Regional
USA Pickleball Mountain Region hosted a qualifier for a Diamond Amateur Championships tournament. With the help of Southern Nevada Pickleball, Sunset Park was able to accommodate 863 players over the course of a week.
Congratulations to all of the players.
A special thanks to the volunteers, officials, sponsors and organizers.
April 20, 2023
Pickleball courts open in Henderson
Two new outdoor courts are now available to players at Dundee Jones Park. The venue is located at 10561 Jeffreys St, Henderson, NV 89052. It is at the cross streets of Jeffreys and Horizon Ridge. The venue has lights.
April 7, 2023
Beginner Program at the Durango Y
April 4 2023
Pickleball courts open in Las Vegas, Ward 1
Four new outdoor courts are now available to players at Aloha Shores Park. The venue is located at 7550 Sauer Dr, Las Vegas, Nv 89128. It is next to Doc Romeo Park and features space for Bocce, Horseshoe, Tennis, Beach Volleyball, Playground, Walk/Jog Track, reservable Picnic area, and barbecue grill The should help alleviate the congestion and significant lack of courts in the northern valley.
April 3, 2023
Veteran's Adaptive Pickleball program comes to Henderson.
March 31, 2023
Shamrock Tournament
The Lake Las Vegas Sports Club held its 7th annual pickleball tournament March 15-18, 2023. The facility hosted 276 players. Picklers enjoyed "A Wee Bit of Frolic and a Whole Lot of Fun!"
March 18, 2023
Thanks for stepping-up.
Our association cannot function without the talents of members and volunteers. Your help allows us to control costs and make pickleball happen in the community.
On March 12, the SNP Board hosted an event to appreciate the contributions of many that have made the organization successful. Over 160 players gathered to play pickleball, have fun. enjoy tacos, renewed old friendships, and meet new picklers.
Randy Wheeler, a pickleball player and local musician provided live music; accepting the popping of the balls as applause.
Representatives were available for players to try out different brands of paddles.
We thank Excel Pickleball for providing access to 20 courts as part of March madness pickleball at Sunset Park.
A special shout out to the Board and organizers of the event that work behind the scenes. Bravo.
To quote one of our founders "We depend upon the contributions of players, volunteers, venues, partners and sponsors to make magic happen."
March 12, 2023
National Championships move to Texas with PPA.
USA Pickleball announced March 9th that the 2023 National Championships will be held in Dallas Texas and join the Professional Pickleball Association tour November 4-12. More information can be found at the following links:
March 9,2023
Anniversary Celebration
The Neon Picklers meetup group celebrates a one-year anniversary with potluck pickleball, games and prizes. The event was held February 13th at Durango. Congrats on accomplishing one year of pickleball fun.
February 13, 2023
Climate Controlled Pickleball
The City of Las Vegas is offering indoor pickleball on refinished wooden floors Wednesdays and Friday, 8:30am to Noon at Chuck Minker Sports Complex. Address (275 N. Mojave Rd. | Las Vegas, NV 89101)
February 1, 2023
The valley adds another USA Pickleball Ambassador
Please join us in congratulating Jennifer Reasner on becoming southern Nevada’s latest USA Pickleball Ambassador. Jennifer lives on the west side of the Valley and recently became an IPTPA Certified Instructor. Here’s Jennifer at the PPA Championship in October of 2022.
January 2, 2023
2022 comes to a close.
As 2022 ends, we would like to reflect on accomplishments throughout the year and extend a sincere thank you to everyone who helped make great things happen.
SNP has touched the community in so many ways. Just looking at our social media timeline tells a story of opportunity and options.
- In one year, we have seen an 83% growth in our reach to players.
- Thanks to your help and contributions, our volunteer base has expanded and helped others.
- We replaced our website application to address the goal of making https://southernnevadapickleball.org a true source of information for all things pickleball in our community.
- We installed an association management software tool and enhanced our communication system to address growth.
- Our players now have a mascot, the Desert Bighorn.
- We shared our expertise with private venues, Clark County and the Cities of Las Vegas, North Las Vegas, and Henderson; raising awareness of pickleball and the value it brings to the community. We will continue to promote access to and the addition of more public courts.
- Our interaction with others brought players together in the spirit of fun organized-competitions and events while partnering with some great organizations. Because of you; a tot received a toy, an Alzheimer’s patient is one step closer to a cure, our police and fire associations received donations, our veteran’s program can grow, and our young players now have youth leagues.
- We worked with the Clark County School District and trained over 250 teachers on "How to teach pickleball to kids."
- Veterans had an opportunity to learn pickleball through a grant program at Dula gym.
- Seniors now have more choices, especially for indoor play.
- SNP members were there to show people how to play and improve skills.
"We depend upon the contributions of players, volunteers, venues, partners and sponsors to make magic happen."
Your financial support, gift of time, cooperation and personal efforts made all the difference. Thanks for being there.
We look forward to more magic in 2023.
USA Pickleball Mountain Region News
Click on the link for the 2022 Winter Newsletter from the Mountain Region.
https://www.southernnevadapickleball.org/docs/USAP_Mountain_Region_winter_newsletter_2022_2.pdf
The Professional Pickleball Association visited Vassiliadis Elementary School. Pros AJ Koller and Lea Jensen had the opportunity to oriented students to pickleball. What a great day of learning and laughing! The Assistant Principal and Special Education Facilitator at the school are fellow "picklers". We applaud them for their dedication to the sport and for wanting to bring the sport to the students at their school! Thank you SNP, PPA and all of our volunteers for creating a unique learning experience.
December 14, 2022
As a result of volunteer effort, another school is ready for pickleball! Four pickleball courts were painted at Vassiladis Elementary which has approximately 1200 students.
Thank you Miles from Sport Courts for donating paint and some equipment.
Thank you SNP for donating the equipment and supplies.
And thank you to the volunteers who made this possible -Rose, Henry, Marty, Daniel, Mark, Terry, Brenda, Bri and Patti.
December 10, 2022
SNP Leadership Presses for CourtsSouthern Nevada Pickleball has been working with municipalities to demonstrate the need for more courts. We will continue to report on movement and initiatives that expand opportunities for players community wide. |
A message from Steve Ford, Director of Parks and Recreation.
Pickleball in the City of Las Vegas
The City of Las Vegas Parks, Recreation, & Cultural affairs will be working on increasing the number of pickle ball courts in our community. As you may be aware, we are awaiting a funding agreement from BLM, and final decision by the incoming Councilperson in Ward 4 regarding the Regional Pickleball complex at Wayne Bunker Park. In the meantime, we have begun the converting other un-used areas in various parks to pickleball courts.
Jaycee/Leavitt park (Ward 3) – converting the shuffleboard area to 4 courts
Aloha Shores park (Ward 1) – converting the roller hockey rink to 4 courts
Children’s Memorial (Ward 5) – converting the roller hockey rink to 4 courts
All these courts will be ready by spring 2023
Additionally, there will be an additional 4 courts added at Police Memorial park within the next 18 months as part of the park renovation project, and 4 courts at the new Igor Soldo park in the far northwest part of the city (Ward 6). This is a developer-built park that is currently in design, with an estimated construction completion in 4Q 2023.
We certainly understand the need for new pickleball courts, and will consider additional projects as budget and space allows.
Respectfully,
Steve Ford, P.E., C.E.M.
Director
Parks, Recreation & Cultural Affairs
City of Las Vegas, Nevada
Office: 702.229.6721 | Cell 702.249.3037
451 E. Bonanza Road | Las Vegas, NV 89101
Here to Serve
December 5, 2022
Another school benefits from volunteer effort. West Career Technical Academy had a visit from the awesome team of Mike Hair, Jo Ann Munz, Jennifer Reasner and Dan Stenson. Thanks to their passion for pickleball, the school now has pickleball lines.
December 4, 2022
2022 Toys for Tots Charity Round Robin, December 2-4, 2022
Sun City Summerlin served as host for the 2022 Toys for Tots Charity Round Robin December 2-4. 160 players assemble at the Desert Vista Community Center to compete, have fun, and support a great charity. Players brought unwrapped new toys or gave a monetary donation at the event to help kids this holiday season. Picklers played hard while finding a moment of joy. Toys 4 Tots raised $12,965 and filled 8 over sized boxes with toys for this Marine's charity. A round of thanks to the Sun City Pickleball Club, Marine Toys for Tots and picklers.
Photos from the event can been viewed by clicking on the 75th Toys for Tots logo >>>>>>>
Decenber 4, 2022
Pickleball Rule Changes for 2023
The USA Pickleball Board voted on rule changes for 2023. Out of 78 proposed revisions/additions, 21 passed. You can find the results and commentary at USAP or click the link here.
October 21, 2022
Nevada Senior Games - 2022 | SNP Lends a Helping Hand | |
September 19, 2022 The Nevada Senior Games sponsored a pickleball tournament September 16 through 18, 2022. This marks the 10th anniversary of Pickleball as a sport event in the local senior games. The event was held at the Sunset Park Regional Pickleball Complex in Las Vegas with 214 players competing for gold, silver, and bronze. Players were able to participate in an amateur sporting event, make new friendships, renew old relationships, and enjoyed a weekend of their favorite sport. Most participants came from Nevada with representative traveling from Hawaii, California, and Utah. One player from England represented the Solihull Pickleball Club. Congrats to all. This was truly a volunteer effort, great competition, and a good time. Winners are eligible to compete in the national senior game championships next July in Pittsburgh Pennsylvania. |
The Nevada senior games have begun planning for next year's tournament with registration opening in Spring 2023
Trademark Images | Mascot | |
August 7. 2022 At the Southern Nevada Pickleball Board meeting held July 28, 2022, a motion was approved to recognize three of our images or a color variation thereof as trademarks for the organization. Plan to see more of the following images at events, with fun items and on merchandise. Our emblem that serves as our logo.
| The Desert Bighorn Sheep (Ovis canadensis nelsoni) serves as the association’s mascot. The Desert Bighorn is Nevada’s state mammal and is native to our community. They are hearty creatures, determined, navigate with speed and agility, and apply keen eyesight. Desert Bighorns are social, band together in herds and have adapted to the desert’s heat and cold. "Bighorns" can now be found on local courts with a paddle, ball and perseverance.
|
Where can I find courts to play in Boulder City?
July 21, 2022
Boulder City offers both indoor and outdoor venues to play the best sport ever.
Here is a link for information form Parks and Recreation. https://bouldercolorado.gov/services/pickleball
In an article provided by the Boulder City Review, officials discuss future plans for development.
https://bouldercityreview.com/sports/pickleball-proves-popular-city-to-add-courts-70529/




















